Elstree Road, Bushey Heath, Bushey, WD23 4GL

For Sale Asking Price, £825,000 (Freehold)

4 3 1

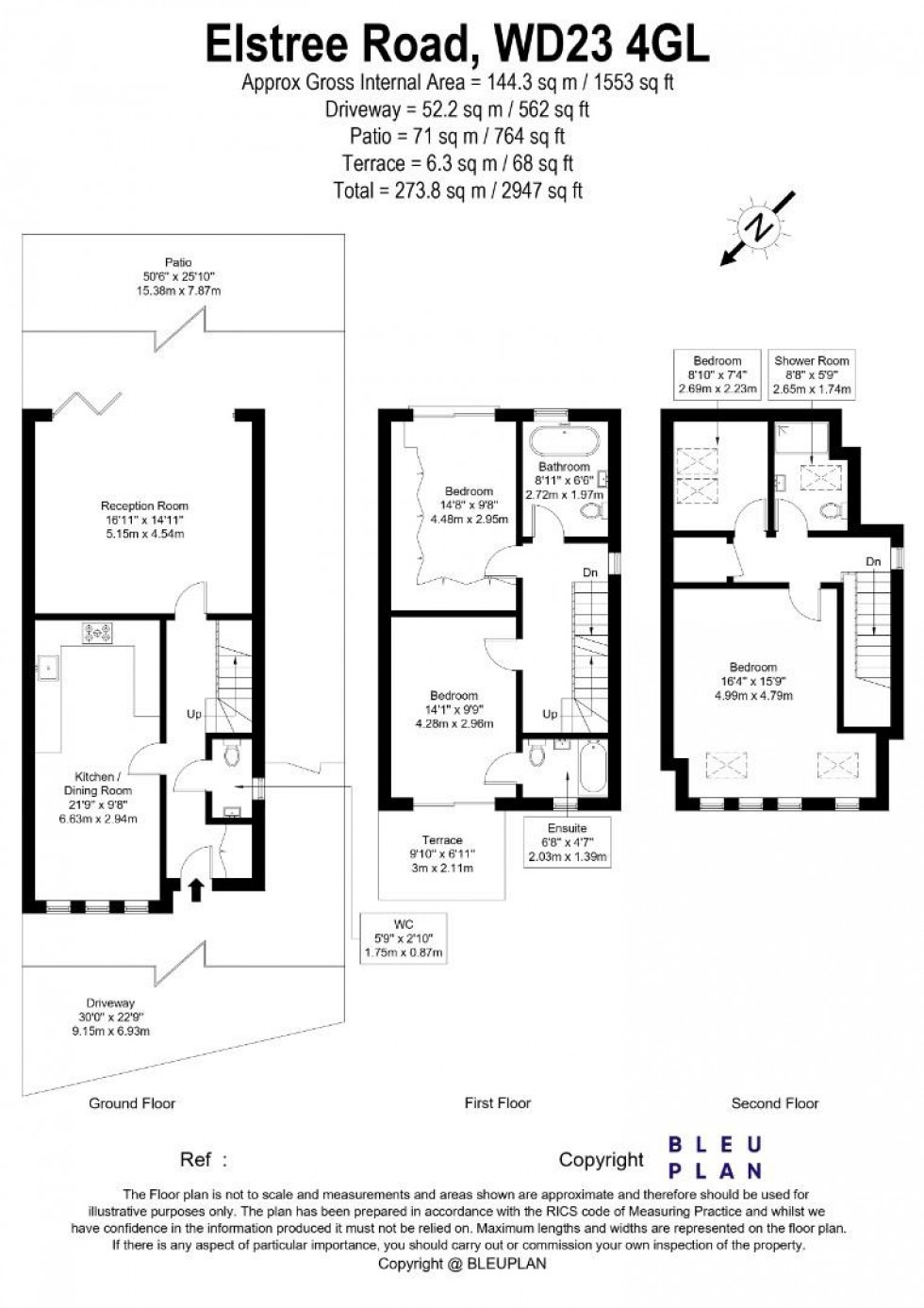
Ground Floor

Upvc entrance door, burglar alarm, hallway, tiled floor with underfloor heating, utility cupboard housing combination boiler, controls and networking hub, under stairs cupboards with electric sockets doors to:

Kitchen/Diner (6.63m x 2.95m)

Modern kitchen/diner with base units with stone worktops over and wall units. Induction hob with extractor over, integrated fridge/freezer, integrated oven, integrated microwave, integrated dishwasher, integrated washing machine, tiled floor with underfloor heating, double glazed front aspect windows.

Downstairs W.C. (1.75m x 0.86m)

Part tiled walls, tiled floor with underfloor heating, concealed cistern wc, floating effect pedestal wash hand basin with drawers under, upvc double glazed frosted window, ventilation system.

Reception Room (5.16m x 4.55m)

Tiled floor with underfloor heating, bespoke TV cabinet with cupboards and shelving and floating effect cabinet of cupboards under, UPVC 4-pane bi-fold doors opening to garden.

First Floor

Stairs with glass balustrade leading to first floor landing, UPVC frosted side aspect window.

Bedroom One (4.29m x 2.97m)

Carpeted flooring, wall mounted air conditioning unit, door to ensuite, radiator, sliding UPVC doors to private terrace.

En-Suite Shower Room (2.03m x 1.40m)

Fully tiled walls and floor, electric and water heated ladder radiator, shower enclosure with rainfall shower head and hand held attachment, concealed cistern w.c., pedestal floating effect wash hand basin, shaving point, frosted UPVC front aspect window, extractor.

Terrace (3.00m x 2.11m)

Private terrace with tiled floor, electric uplights, ground mounted air conditioning outlet unit.

Bedroom Two/Dressing Room (4.47m x 2.95m)

Bespoke fitted wardrobes and cupboards, radiator, upvc sliding doors to rear aspect Juliet Balcony.

Family Bathroom (2.72m x 1.98m)

Fully tiled walls and floor, electric and water heated ladder style radiator, concealed cistern w.c, pedestal floating effect wash hand basin, freestanding bath with centre taps and hand held shower attachment, upvc rear aspect frosted window.

Second Floor Landing

Stairs with glass balustrade leading to second floor landing, UPVC frosted side aspect window. Cupboard housing hot water tank.

Bedroom Three (4.98m x 4.80m)

Upvc double glazed, front aspect windows, 2 x velux windows with integrated solar powered black out blinds, radiator.

Bedroom Four/Study (2.69m x 2.24m)

Bespoke fitted office cabinets, draws and desk. 2 x velux windows with integrated solar powered black out blinds.

Shower Room (2.64m x 1.75m)

Fully tiled shower room with shower enclosure with rainfall showerhead and hand held attachment, floating effect pedestal wash hand basin, concealed cistern w.c., electric and water heated ladder radiator, velux window.

Externally

Driveway with off road parking for 2 cars, electric car charging point, side gate access to garden.

Rear Garden (15.39m x 7.87m)

Side access with hose connection point, leading to enclosed paved private garden with shrub surround, outdoor electric sockets.

Location

This property is conveniently located with access to several transport links as well as the A41, M1 and M25 motorways situated in the popular Bushey Heath area, 350 yards from Immanuel College, 400 yards from Bushey Heath Primary School. The property is also close by to the vibrant Bushey Heath High Road which is full of many different shops and eateries. Watford High Street shopping centre is also just a short drive away providing further shops, amenities, recreational and entertainment facilities.

Additional Information

Council Tax Band F £3,307 per annum

We hereby disclose that a personal interest exists which constitutes a declarable interest under the Estate Agent Act 1979.

  • MODERN FOUR BEDROOM END TERRACE TOWN HOUSE
  • THREE BATHROOMS
  • DOWNSTAIRS W.C.
  • UNDERFLOOR HEATING TO GROUND FLOOR & DOUBLE GLAZED THROUGHOUT
  • SPACIOUS RECEPTION ROOM WITH BI-FOLD DOORS TO PAVED GARDEN
  • LARGE KITCHEN/DINER
  • ENSUITE AND TERRACE OFF OF BEDROOM ONE
  • SITUATED IN POPULAR BUSHEY HEATH
  • BUILT 2021
  • OFF STREET PARKING FOR TWO CARS WITH ELECTRIC CHARGING POINT
Floorplan for Elstree Road, Bushey Heath, Bushey, WD23 4GL
EPC Graph for Elstree Road, Bushey Heath, Bushey, WD23 4GL

Get an instant online valuation

Find out how much your property is worth